
Simple, elegant, timeless design.
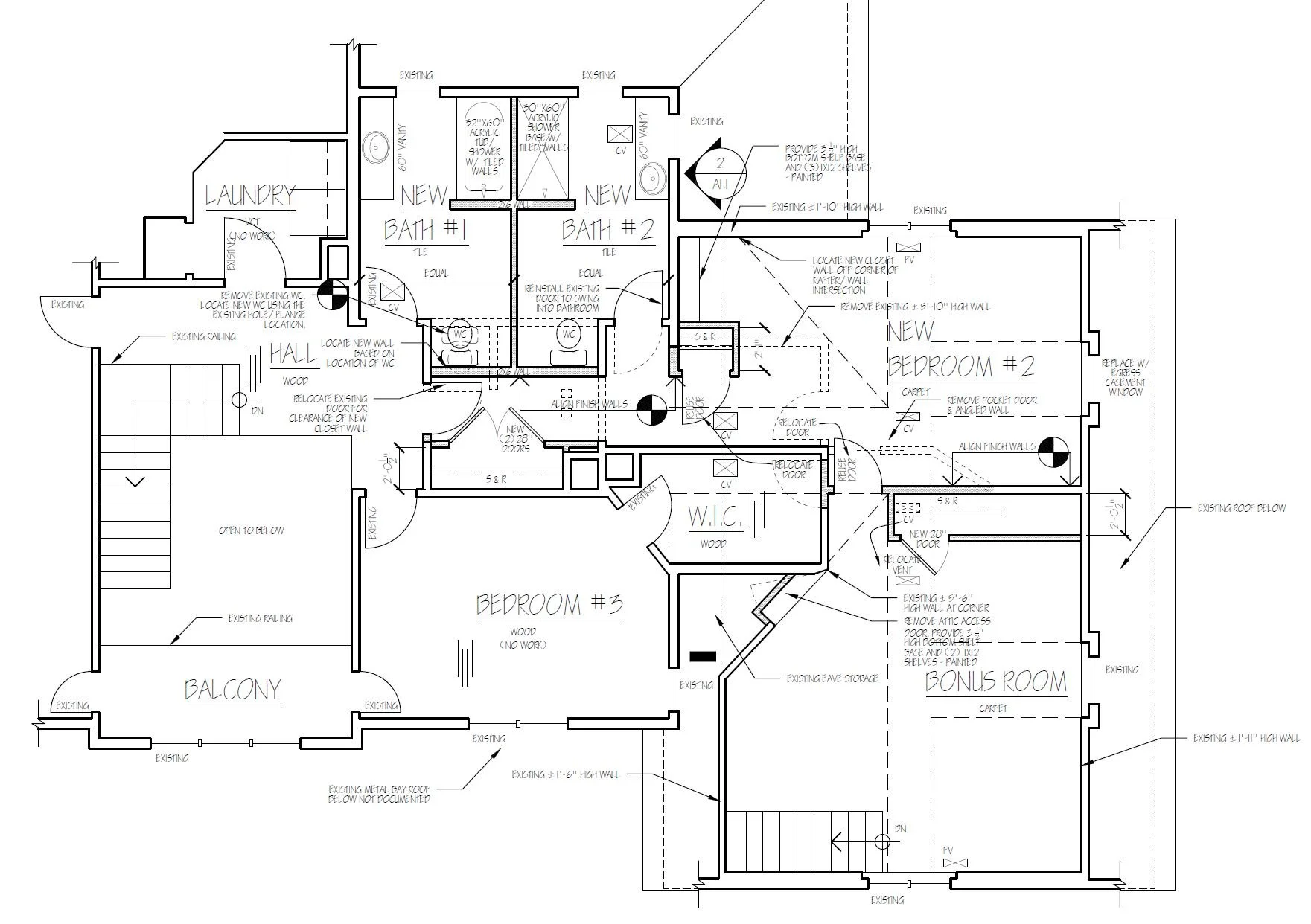
Through working directly with the client, JWM Architects provided the floor plan design. We collaborated with the client to make some modifications during the construction process.
New Bathroom #1
We turned a bedroom into two new bathrooms side-by-side. We used Kohler fixtures in a chrome finish to give this bathroom a simple, timeless feel.
This bathroom serves as a second master bathroom off the new suite we built in the space above the garage.
This bathroom features oil rubbed bronze fixtures from Kohler which compliment the natural floor color well. Ceiling mount vanity sconces give this bathroom a more unique feel.
The new bathroom serves as the general bathroom for the upstairs bedrooms.